Bilocale in vendita

Napoli, Strada Comunale del Cassano - Secondigliano Corso
€ 130.000
Prezzo aggiornato
2 locali 2 locali
75 Mq 75 Mq
1 bagno 1 bagno

Bilocale in vendita

Napoli, Strada Comunale del Cassano - Secondigliano Corso

Descrizione annuncio

ZONA: VIA CASSANO

IN VENDITA LOCATA FINO A GENNAIO 2027!

In Via Cassano, in una delle zone più richieste e servite, caratterizzata dalla presenza di numerosi negozi e servizi di ogni genere,
proponiamo in VENDITA LOCATA un appartamento di circa 75 mq ubicato al 4° piano di uno stabile munito da ASCENSORE.

La soluzione gode di una doppia esposizione che garantisce luminosità in tutti gli ambienti, rendendo la casa accogliente e confortevole durante tutta la giornata.
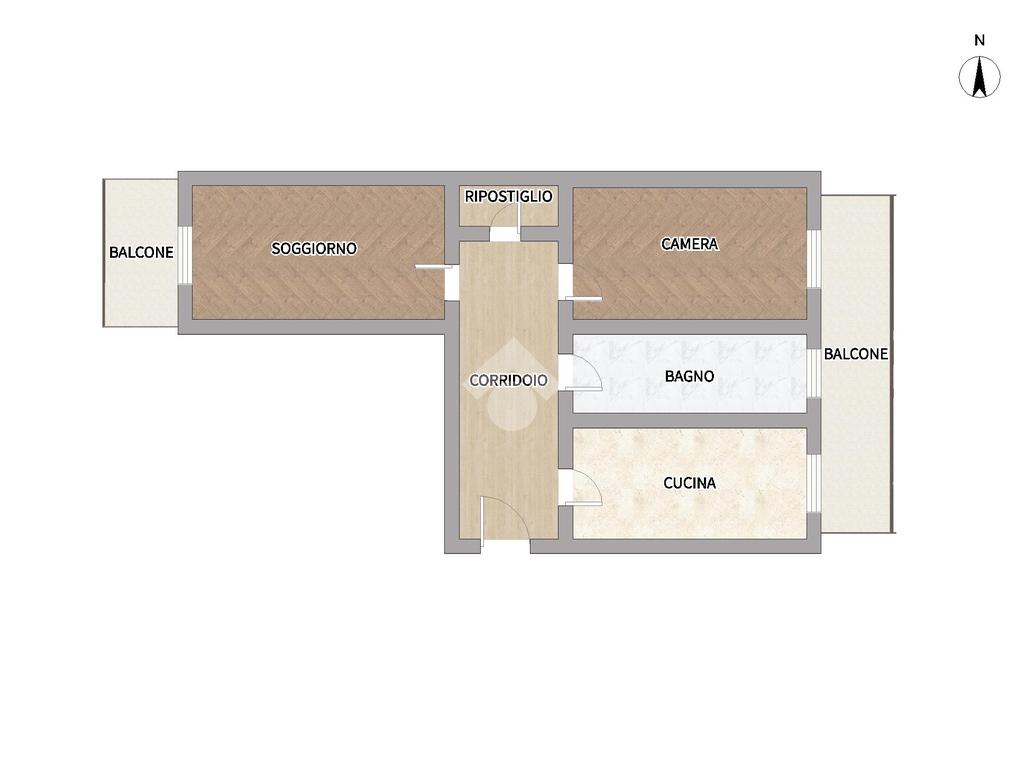
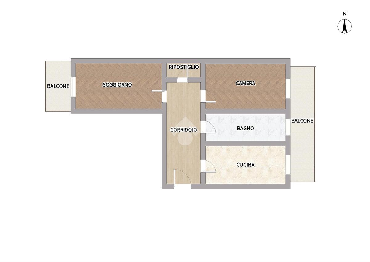
L’appartamento è composto da ingresso in corridoio, cucina abitabile, bagno finestrato e due ampie camere con accesso su balcone.

L'IMMOBILE E' ATTUALMENTE LOCATO CON CONTRATTO A CANONE CONCORDATO 3 + 2 CON RENDITA ANNUALE DI 5400,00 EURO.


VISIONABILE PREVIO AVVISO TELEFONICO.
Siamo operativi:
-dal lunedi al venerdi 9.00/13.00 - 16.00/20.00
-il sabato 9.00/13.00

Telefono: 081.18175542
Whatsapp: 3408474504
La nostra sede si trova sul Corso Secondigliano 445.

Nella nostra agenzia è possibile richiedere gratuitamente una consulenza finanziaria. I professionisti della società di mediazione creditizia del Gruppo Kiron partner del Gruppo Tecnocasa saranno pronti a rispondere a tutte le domande e i prodotti da poter richiedere sono vari e a seconda della propria esigenza : Mutui prima, seconda casa e ristrutturazione. Sostituzione o Surroga del Mutuo. Prestiti Personali. Cessioni del Quinto dello Stipendio o Pensione.

Mostra tutto

Nelle vicinanze

Trasporto pubblico Trasporto pubblico
Piscinola (EAV)
Piscinola (EAV)
2,9 Km
Piscinola
Piscinola
2,9 Km
Poggioreale
Poggioreale
2,6 Km
Centro Direzionale
Centro Direzionale
2,8 Km
Emiciclo di Poggioreale
Emiciclo di Poggioreale
2,4 Km
Scuole Scuole
Scuole
260 m
Istituto Comprensivo Statale 61° Circolo Nazario Sauro
500 m
Istituto Comprensivo Statale Errico - Pascoli
810 m
51 Circolo Didattico Scuola El Re Statale A.Oriani
1,2 Km
Salesiani Don Bosco
1,6 Km
Farmacia Farmacia
Farmacia
60 m
Farmacia Mandanici
2,5 Km
Farmacia Eredi dottor Bruno
2,6 Km
Farmacia Dottori di Maggio
2,8 Km
Ospedali Ospedali
Ospedale San Giovanni Bosco
1,2 Km
Ospedali
1,4 Km
Centro Traumatologico Ortopedico
2,6 Km
ASL NA1 Poliambulatorio
2,7 Km
Supermercati Supermercati
Conad Supermercato
210 m
Supermercati
360 m
Conad
1,5 Km
Decò
2,3 Km
SISA - MegaMercato
2,4 Km
Negozi Negozi
Negozi
1,1 Km
Vestuto
1,9 Km
Tarallificio Leopoldo
2,7 Km
Kappa - SSC Napoli
2,9 Km
Etienne
3,0 Km
Bar Bar
Blue Moon
110 m
Gran Caffè
530 m
Bar
840 m
DUBL food & bubbles
1,1 Km
Bar Angelo
1,2 Km
Ristoranti Ristoranti
Ristoranti
400 m
A'ddò figlio 'e Michele
1,5 Km
Pizzeria
1,5 Km
Pizzeria Carminiello
1,6 Km
Del Leone
1,6 Km
Mostra tutto

Caratteristiche

Rif.:
61117718
Piano:
4 di 5 con ascensore (Piano alto)
Balconi:
2
Camere da letto:
2
Arredamento:
Completo
Condizionamento:
Autonomo
Mostra tutto
Prezzo Prezzo
€ 130.000
Rata mutuo Rata mutuo
€ 613 / mese
Spese annue Spese annue
€ 336
Proponi il tuo prezzoProponi il tuo prezzo

Classe Energetica

E
E
E
E
E
E
E
E
E
EP globale non rinnovabile:
123.00 kW h/m² anno
EP globale rinnovabile:
123.00 kW h/m² anno
EP invernale del fabbricato:
EP estiva del fabbricato:
Anno di costruzione:
1960
Riscaldamento:
Autonomo
Tipo impianto:
A stufa
Tipo alimentazione:
Metano

Prezzo ridotto di €1 (17%%)

Ti interessa visionare l'immobile?

Fissa un appuntamento  Fissa un appuntamento

Richiedi informazioni

Clicca su Leggi per aprire l'informativa
* Questi campi sono obbligatori

Calcola il tuo mutuo

Semplice e senza impegno
Anticipo

( % )
Mutuo

( % )

pochi semplici passi

inserisci i tuoi dati
Questionario completato
Grazie per aver richiesto un appuntamento senza impegno con un nostro Consulente del Credito e Assicurativo.

Hai inserito correttamente tutti i dati necessari e a breve riceverai una e-mail con un link da convalidare per inviare i tuoi dati.
Affiliato
Studio Secondigliano 2 Srl
Corso Secondigliano, 445 80133 Napoli (NA)
Corso Secondigliano, 445 80133 Napoli (NA)
Zona: Secondigliano-Corso Italia-Monterosa-Scampia
Mostra su mappa
Affiliato
Studio Secondigliano 2 Srl
Corso Secondigliano, 445 80133 Napoli (NA)

2026 Tecnocasa Franchising S.p.A. - P. IVA 08365160152 - Via Monte Bianco 60/A 20089 Rozzano (MI). Ogni agenzia ha un proprio titolare ed è autonoma. Privacy policy | Policy utilizzo | Cookie policy